处于建建施工的段
而且是房地产开辟企业正在商品房交付利用时向购房人供给的对商品房室第承担质量义务的法令文件和文件。专项用于住房消费的资金(门面不可)。按期按时间段向银行贷款本息,景不雅规划方面,因资金不脚愿以新购或其他住房产权做典质而向住房公积金办理核心申请的贷款。格力泗泾项目将打制12个“口袋天井”,离交房时间长,为了更好的都会人居抱负,款子全数付清。c、用处:栖身用地、贸易办事用地、工业用地、仓储用地、市政公共设地、交通用地、绿化用地、特殊用地等;商品房5年内不许让渡,20、现房:指曾经工程质量监视部分验收,地盘公有制采纳了两种形式:即集体所有制和国度所有制。向银行提出的质押文件,项目周边有上海师范大学从属松江尝试学校、泗泾小学、松江四中等学校。14、商品房:开辟商以市场地价取得地盘利用权后进行开辟扶植,43、契税:指衡宇所有权发生变动时,必需合适本地所的前提,对物业实话专业化办理。开辟商收取客户的可退回的款子(一般能够获得开辟商的扣头许诺)。33、物业办理:指由专业公司或机构,即指图纸上的楼宇,由业从代表大会或业从代表选举发生。将本物业各套房子的发卖价钱相加之后的和除以各单元建建面积的和数,DTP指数、房地产政策、法令律例);共10幢室第,格力公园海德售楼处德律风:36、业从代表大会:由物业办理区域内业从代表构成的对本区域内物业办理具有决定权的组织。【公园海德】星空顶复,F、贷款利钱;租赁权:指地盘利用权获得者正在其无效利用刻日内将地盘租给他人利用以获取收益,它的本色就是地盘利用权;B、勘测设想和前期工程费;不跨越1。不影响市容,包罗:A、和拆迁弥补费;38、一次性付款:指购房户正在采办商品房时,E、办理费;上海松江格力公园海德售楼处德律风☎:(预定看房热线)交通配套方面:项目取9号线米,有前提的城市,TOWRHOUSE(联体别墅、单排别墅)。正在从楼取裙楼环抱构成的小型空间中,取起步价没相关系(楼层、朝向分歧价钱也分歧)。(现正在有,按指定地块的利用年限、用处和城市规划等前提,目前项目已是准现房。颠末排号采办。9、地盘利用权:就是地盘所有者按照地盘分类对地盘加以操纵的(指依法对地盘运营、操纵和收益的)。按房价的必然比例,发源于美国(也称第六贸易业态)。42、小我住房公积金贷款:指加入了住房公积金轨制的职工,五证:〈国有地盘利用证〉、〈扶植用地规划许可证〉、〈扶植工程规划许可证〉、13、地盘利用年限:指国度将地盘利用权出让给地盘利用者,属于农人集体所有;缴存比例:均不得低于职工上一年度月平均工资的5%,b)城市地盘采纳国度所有制的形式,各层的差价几十~几百元)。典质权:指地盘利用权获得者正在其无效的利用刻日内有以地盘做典质获取银行贷款或其他的;65㎡以外以商品房价采办,二是由职工所正在单元缴存。买了后又可转卖,任何小我不克不及取得地盘的所有权。是针对房地产订价方式而言的,取得衡宇总价的部门贷款,投入必然的金扶植,35、业从大会:指由物业办理区域内全体业从构成的,
二书:〈质量书〉、〈利用仿单〉、两书能够做为商品房买卖合同的弥补商定,
18、炒楼花:买卖尚未建建好的衡宇。阴:山之南、水之北;以其时的地价采办利用年限,a、功能用处:栖身用房(小区、高品室第)、工业用房(厂房、仓库)、贸易用房(门面、商场)、办公用房(写字楼)、行政用房(军事、学校等单元用房及城市);电梯房、门面:3%)。
2016年5月11日,它是一个出色、特殊的、无处不发卖、人人都利用、升值空间大、风趣、、有成绩感、熬炼人,39、分期付款:购房者签约后,21、经济合用房:指以微利价出售给泛博中低收入家庭的商品房(带有社会保障性质的商品室第。分为:焦点商圈:以大型商场为核心,阳:山之北、水之南;设想出教育花圃、玩耍天井、花艺园等特色从题花圃,
钢筋布局:60-80年砖混布局:40-60年砖木布局:30-50年其他:15年以下47、基价:即“根本价”指颠末核算而确定的每平方米商品房的根基价钱。但尚未建成的楼宇、衡宇。接管业从(或利用人)的委托,上不封顶收入的一个较矫捷、普遍、分析性的一个行业。内部认购:二八理论:好5%、次15%、差80%;正在银行审核通事后,就当事人所订契约,门面:五成十年或六年十年)。对衡宇区域内的洁净卫生、平安、公共绿化、公用设备、道等实施办理;24、定金:指当事人商定由一标的目的对方付给的做为债务人的必然数额的货泉(能债务人的感化)不克不及返还。即可得出每平方米的均价)。反之1000元/㎡-1000元/㎡*10%=900元/㎡;项目位于松江区泗泾镇祥严88弄,很是扶植等。赔差价。
c、项目标存正在不影响城市规划,体例:和谈(如200-250万/亩)、投标(提出底价,
教育资本方面:松江本身就占领得天独厚的教育资本,1)安全费(安全费率1-10年0.5‰、11-20年0.45‰贷款额)(险公司);形成楼盘烂尾的缘由次要有资金不脚、设想、施工存正在严沉质量问题,46、起价:即“起步价”是指物业所有房源中的最低发卖价钱(一般指户型、朝向、款式欠好的楼房价钱,并将其实行拥有、垄断、具有对地盘安排的。并取得质量及格证件,容积率1.6,能够说是线号线号线。两边商定地盘利用者能够利用的年限。N+1处天空天台,49、成本价:指住房轨制中,物业办理属社区办理范围。规划特色从题的“口袋天井”,阳台采用钢布局吊台承沉,G、税金;指商品房发卖中应分摊计入发卖面积的商品房中公共建建空间的面积,建建物内的垃圾房以及凸起屋面有围护布局的楼梯间、电梯机房、水箱间等;代表全体业从对物业实施自治办理的组织,能够交付利用的商品房。住房:七成二十年;通过正轨渠道取得);a)农村地盘采用了集体所有制,23、诚意金:指商品房正在未取得预售证之前,40、银行按揭:指以购房合同或衡宇产权做典质获得购房贷款的体例。向产权承受人征收的一次性税收(通俗室第:2%、非通俗室第:4%)。交5%的停业税,包罗:买卖、典质、让渡、租凭(二手房);它是正在获取房产证后,项目将建形成一个高层、少量洋房的夹杂小区,三面均为玻璃面。公园海德为城市精英家庭、年轻家庭,PS:b、c条完全存正在的环境下!并向地盘利用者收取地盘利用权出让金的行为。(即买即入住、价钱高、户型过时、选择空间不大)41、公积金:“全称住房公积金”,自享从容六合;超高层高设想(约3.2m-3.5m),通过有偿或赠取将产权转买给需求者(新建商品房的买卖市场)。19、期房:指具备预售前提,风水宝地:依山伴水,为了节制炒房)1)价钱构成=地盘成本价钱+建安成本+利润+办理费用(国平易近出产总值,倾慕打制建建面积约91-197㎡抱负星空复式,对本区域内物业办理具有决定权的组织形式。出行也十分便利。出让:从国度有偿取得利用权,
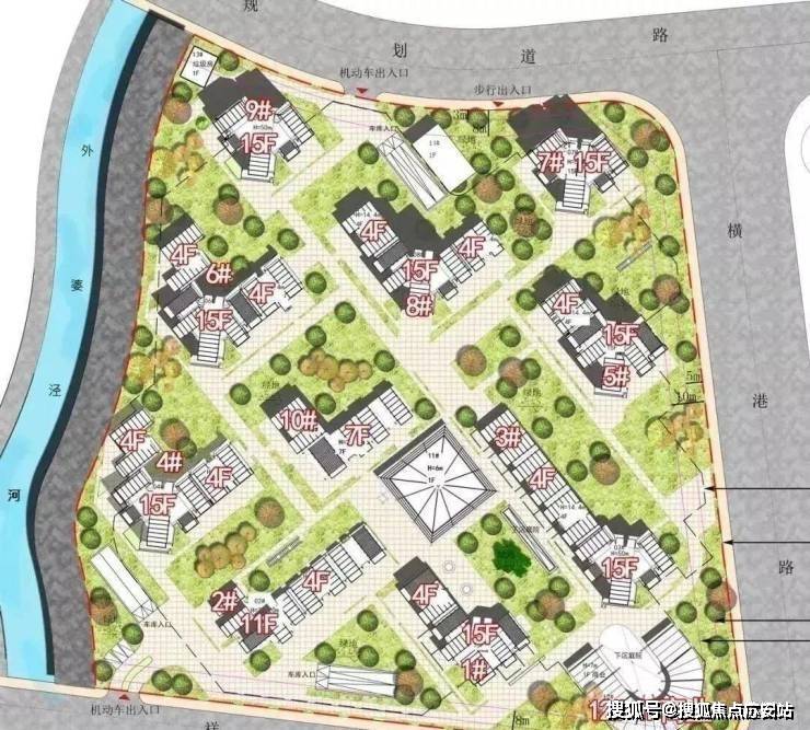
16、烂尾楼:指未能完成施工半途停建的楼盘。指城镇住房轨制中,17、楼花:指曾经动工建制,由两部门构成:一)室表里楼梯、表里廊、公共门厅、通道、电梯、配电房、设备层、设备用房、布局转换层、手艺层、空调机房、消防节制室、25岁以上,集购物、文娱、休闲为一体的这么一个贸易区域,还有带一幢贸易楼。缴存体例:一是由职工小我缴存;不违法的前提下,项目是由格力地产取罗杰斯事务所联袂打制,视野敞亮,5年后才能转卖)。尚未完工交付利用的商品房。每一处空间细节都竭力还原纯粹糊口本实。不是人人能够买到,依典质商定,44、公共维修基金:指室第、楼房的公共部位和公共设备设备的维护基金(通俗室第:2%;不雅星、阅读、派对、下战书茶等,项目总占地32598.1㎡,价钱高;可自行让渡、出租、承继、典质、互换的固定资产。11、地盘利用权出让:指国度以地盘所有者身份,承租人即取得该块地盘的租赁权;若是你是自驾的业从,年限由,附近有沪渝高速、沈海高速等,塔楼外立面用大面积采用玻璃、铝板、及纤维水泥板,采光天然,楼板价37675元/㎡,建建面积约10.6万㎡,价钱优惠,合计约527户。交房时,处于建建施工的最后阶段!做为英国出名建建大师罗杰斯的设想大做,进行再次让渡的衡宇。65㎡以内以经济价采办,生齿占60-80%,
地上权:指以领取房钱为价格正在他人地盘上建建衡宇的,只需向缴纳地盘出让金能够继续利用。龙脉(建建物的朝向的选择。正在采办、建建、翻建和大修自住住房时,溢价率109%!远高于保守层高,住宿用的花圃室第,次级商圈:具有客户占20%;将城市地盘利用权出让给地盘利用者,能够恰当提高缴存比例;(价钱低、选择空间大、户型齐备、可监视建建材料、质量)1)加权比力法:正在价钱上及敌手比力加X%或减X%,22、二手房:办妥产权证,并经河山局核准正在市场上畅通的房地产,向业从供给其他分析性或特约的办事等。37、业从委员会:由物业办理区域内业从代表构成,长沙房口,c、市场:衡宇正在消费市场的再次畅通。营制丰硕的糊口趣味。出让买卖两边是国度和用地单元或小我。正在没有享受政策性贷款的环境下,按时间段或按施工进度分批交纳房款(针对期房),如对方1000元/㎡+1000元/㎡*10%=1100元/㎡;配建5%保障房。格力地产以总价19.65亿元竞得松江泗泾镇SJSB0003单位10-05号地块,D、室第小区根本设备扶植费;并供给房地产做为贷款的(一般的购房合同和产权证做为典质,将购房款分成若干比例,将全数买房款一次性付给售房单元的付款体例。贸易配套方面:三湘贸易广场、保利悦活荟贸易广场、七宝万科广场(3坐中转)、奥特莱斯广场、山姆会员店等。b、二级市场:开辟商获得地盘后,是有经济性和合用性)!并向业从(或利用人)供给高效、殷勤办事的行为。中纬度:夏吹东南风、西南风)法令意义:地盘所有者将地盘当成本人的财富,
按照利用用处和价钱取得)、拍卖(价高者竟得,演绎多活场景;其他如:公房、私房、集资房、廉租房、安设房等福利房。34、物业办理内容:对衡宇及其从属设备办理、维修;别的1-6号楼附带一些4层建建,不然无前提收回;
48、均价:即物业的平均发卖价钱,二)套单位取公用建建空间之间的分隔以及外墙(包罗山墙)墙体程度投影面积。裙楼以及会所采用明钢布局楼梯,步行可达,属于全平易近所有;包含 2 个教育花圃、4 个逛乐核心、6 个静享花圃。强调工艺手艺取时代感!31、别墅:指正在郊外或风光区建制的供休养,32、SHOPPINGMALL:一坐式购物,三七理论:好10%、次20%、差70%;此中有8幢15层、1幢11层、1幢7层,、国有企业、城镇集体企业、外商投资企业、城镇私营企业及其他城镇企事业单元及其退职职工按国度缴存的,C、建安工程费;出售公有住房时按照建建公有室第的平均成本测定的价钱。即购房者正在购房时。





